
个人简介
于辉,男,汉族,共青团员,土木建筑学院给水1601班学生,学习勤奋刻苦,工作认真踏实,连续三年获得综合测评奖学金,在土建心理协会获得“优秀干事”和“优秀副部长”称号。
毕业设计简介
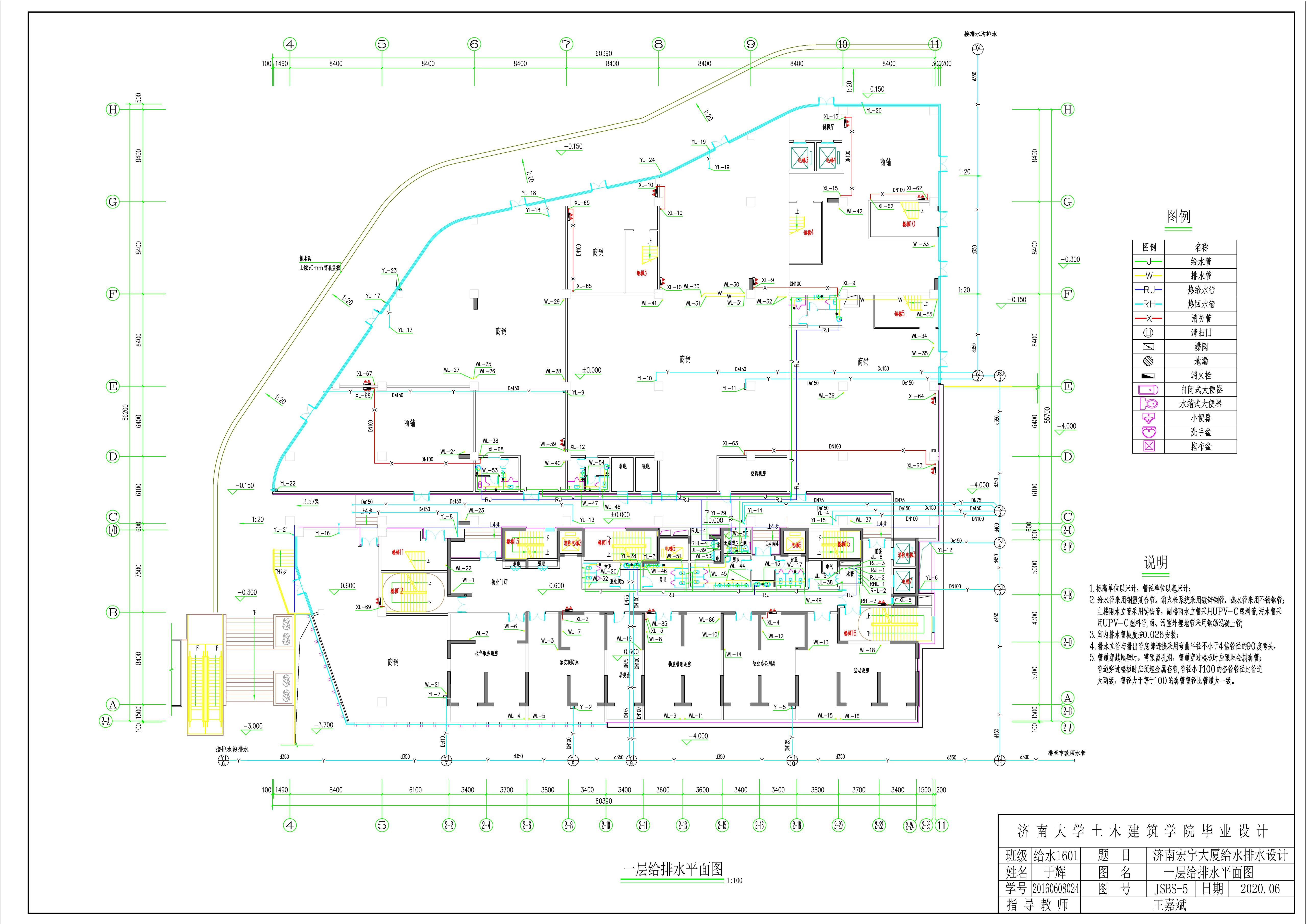
题目:济南宏宇大厦给水排水设计
指导老师:王嘉斌
设计内容:济南宏宇大厦给水排水系统设计,本设计为二十四层的高层综合楼,位于济南市,建筑地上高度为79.9m,地下高度为-12.8m。该建筑分为主楼和副楼两部分,主楼地下三层(不包含夹层),地上二十四层(不包含设备层和机房层),副楼地下三层,地上四层。建筑副楼地上一至二层为商店,三至四层为宾馆,主楼地上一至二层为商店,三至六层为宾馆,七至二十层为住宅。地下一层由商店、储藏室、超市和电影院组成;地下二层由电影院、停车场和储藏室组成;地下三层由停车场和储藏室组成。建筑地下一、二、三层建筑面积为10302.65 m2,地上一层建筑面积2785.71m2,高层建筑面积576.53m2 。
给水系统采用竖向分区供水,地下三层至地上六层为低区,给水形式为由市政管网直接供水,七层至十五层为中区,十六层至二十四层为高区,均采用变频水泵供水,水箱位于地下二层,设备置于地下三层。
排水系统采用污、废合流制,地下部分楼层污水排至地下三层的集水坑,经潜污泵提升排至室外检查井,建筑与地面接触楼层单独排出,二层及以上的污废水通过立管排至室外检查井,由室外污水横主干管汇至化粪池;最后排至市政污水管。
热水系统采用竖向分区和横向分区结合的供水形式,其中竖向分区形式与给水系统分区形式相同,低区再通过横向分为两个区,采用集中式热水供应系统,低区由市政直接供水,中、高区用水由地下二层生活给水水箱供给,设热水泵和循环泵,设备置于地下三层。
雨水排水系统采用87式雨水斗内、外混合排水的方式,按照济南的重现期和暴雨强度选取雨水计算参数,汇水面积由屋顶的坡度决定,进而进行雨水系统的设计计算。
消火栓系统消防系统整体为一个分区,底部消火栓采取减压阀减压处理,消防水泵房设在地下三层的消防水泵间,在顶层机房层设置消防水箱,作为初期灭火的水源,且与自动喷淋系统合用。
自动喷淋灭火系统:采用湿式喷淋系统,由消防水池供水,每根立管对应一个报警阀,本建筑只在地下三层和地上六层之间设置自动喷淋设施,每个防火分区一根喷淋立管。

































